
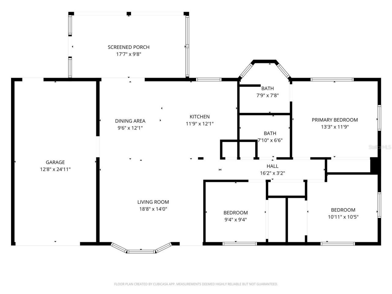
Welcome to this beautifully updated ranch offering comfort, functionality, and Florida-style outdoor living. This 3-bedroom home features an open floor plan with ceramic tile flooring throughout, complemented by recessed lighting and ceiling fans in every room for year-round comfort. The kitchen is thoughtfully designed with stainless steel appliances, a wall oven, electric cooktop, quiet-close cabinetry, and a convenient reach-in pantry. It flows seamlessly into the living and dining areas, cre...Welcome to this beautifully updated ranch offering comfort, functionality, and Florida-style outdoor living. This 3-bedroom home features an open floor plan with ceramic tile flooring throughout, complemented by recessed lighting and ceiling fans in every room for year-round comfort. The kitchen is thoughtfully designed with stainless steel appliances, a wall oven, electric cooktop, quiet-close cabinetry, and a convenient reach-in pantry. It flows seamlessly into the living and dining areas, creating an ideal space for both everyday living and entertaining. The primary suite offers peaceful backyard views and includes a well-appointed three-quarter en suite with granite countertops and modern finishes. All bedrooms feature closet organizing systems for efficient storage. The secondary bathroom has been tastefully updated with granite countertops, a new vanity, upgraded lighting, a lighted mirror, a tiled shower, and a timed exhaust fan. Additional highlights include hurricane impact windows, an HVAC system approximately five years old, an updated water heater, fresh interior paint, and an automatic garage door opener with a one-car garage. Step outside to a private screened lanai featuring a pool and sealed patio floor, perfect for relaxing or entertaining. The partially turfed backyard provides a low-maintenance space ideal for gardening or outdoor enjoyment. This move-in ready home combines thoughtful updates, practical features, and inviting outdoor space-ready for its next owner to enjoy.
View MoreCourtesy of
Agency Name: FLAT FEE REAL ESTATE
Agency Contact: 941-392-3968
Agent Name: Matt Havers
Presented by
Agent Name: Sherry Grooms
Agent Phone: 941.705.2438
Agency Title: The Keyes Company
Request Info
Send an email with a link to
3106 Oxford Drive W, Bradenton, FL 34205.
Email 3106 Oxford Drive W, Bradenton, FL 34205
Thank you for your inquiry! As a thank you, we have a Special Mortgage Offer for You.
We would like to provide you a free, no-obligation, home loan pre-approval review.